gazzetta immobiliare

Bi/Trilocale in Vendita Prato

265.000
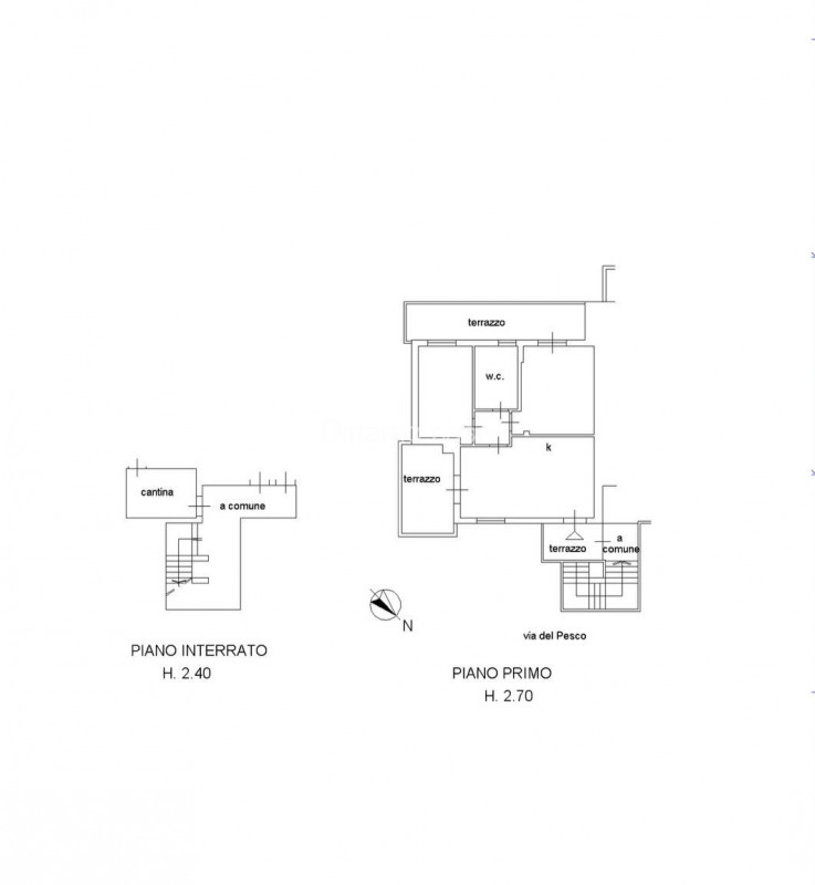
Mq. 75
3 locali

La Querce

- Prato (PO) Via del Mandorlo
Gazzetta Immobiliare 10959815 – Riferimento Agenzia RB265 – La querce. In zona tranquilla e ben servita, proponiamo un appartamento di circa 75 mq posto al 1 piano di una palazzina. L'immobile è composto da un ampia sala, con cucina in open space, due camer... Vedi di più
Prezzo: € 265.000 Fai una controproposta

Contatta per l'annuncio

Confermo di aver letto l'informativa vedi sul trattamento dei dati personali (D.Lgs196/2003) e

* I campi con l'asterisco sono obbligatori


La responsabilità del contenuto dell'annuncio fa capo all'inserzionista, questo portale immobiliare attua controlli ma non può fornire alcuna garanzia circa le informazioni pubblicate da terzi.