gazzetta immobiliare

Bi/Trilocale in Vendita Olbia

255.000
Mq. 95
3 locali

Olbia - Centro

- Olbia (SS) Via San Simplicio
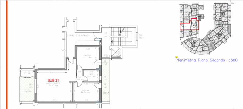
Gazzetta Immobiliare 10703728 – Riferimento Agenzia 600 – Nel centro pulsante di Olbia, proponiamo un appartamento trilocale di circa 95 mq, ideale per chi desidera vivere a pochi passi da tutti i servizi e le attrazioni della città. Situato al secondo pian... Vedi di più
Prezzo: € 255.000 Fai una controproposta

Contatta per l'annuncio

Confermo di aver letto l'informativa vedi sul trattamento dei dati personali (D.Lgs196/2003) e

* I campi con l'asterisco sono obbligatori


La responsabilità del contenuto dell'annuncio fa capo all'inserzionista, questo portale immobiliare attua controlli ma non può fornire alcuna garanzia circa le informazioni pubblicate da terzi.