gazzetta immobiliare

Palazzo/Stabile in Vendita Avola

260.000
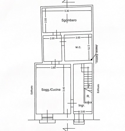
Mq. 130
2 locali

Avola - Centro

- Avola (SR) via roma
Gazzetta Immobiliare 10585308 – Riferimento Agenzia 1082 – House&Villas Real Estate propone in vendita un immobile indipendente con terrazzo sito in via Roma ad Avola, in pieno centro storico. L'immobile è grande circa 130 mq si suddivide in due livelli ed Ã... Vedi di più
Prezzo: € 260.000 Fai una controproposta

Contatta per l'annuncio

Confermo di aver letto l'informativa vedi sul trattamento dei dati personali (D.Lgs196/2003) e

* I campi con l'asterisco sono obbligatori


La responsabilità del contenuto dell'annuncio fa capo all'inserzionista, questo portale immobiliare attua controlli ma non può fornire alcuna garanzia circa le informazioni pubblicate da terzi.