gazzetta immobiliare

Bi/Trilocale in Vendita Rocca di Papa

168.000
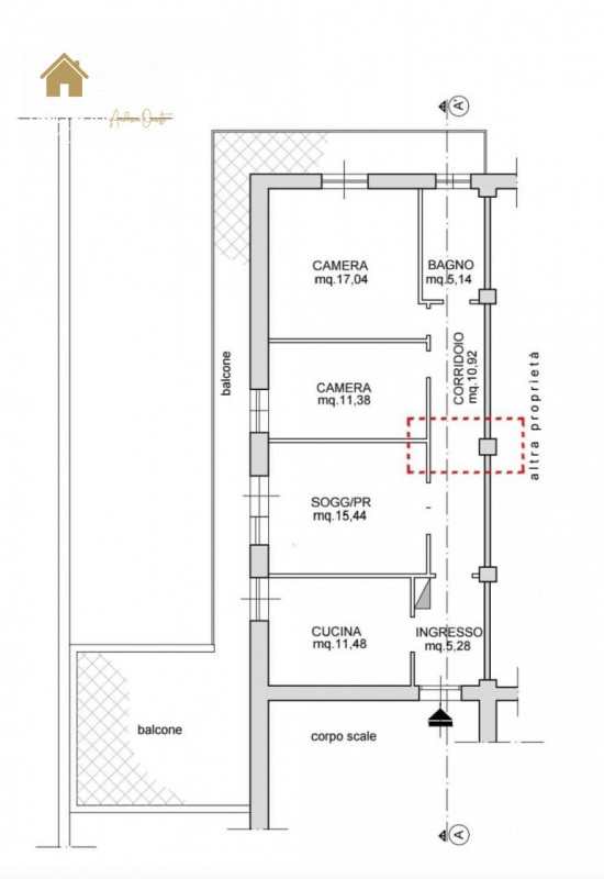
Mq. 90
3 locali

Rocca di Papa

- Rocca di Papa (RM) VIA DI FRASCATI 225
Gazzetta Immobiliare 10973668 – Riferimento Agenzia 168 – L'agenzia immobiliare di Onesti Andrea è lieta di presentare un affascinante appartamento trilocale in vendita, situato nella parte bassa di Rocca di Papa. Questo luminoso immobile, con una generosa ... Vedi di più
Prezzo: € 168.000 Fai una controproposta

Contatta per l'annuncio

Confermo di aver letto l'informativa vedi sul trattamento dei dati personali (D.Lgs196/2003) e

* I campi con l'asterisco sono obbligatori


La responsabilità del contenuto dell'annuncio fa capo all'inserzionista, questo portale immobiliare attua controlli ma non può fornire alcuna garanzia circa le informazioni pubblicate da terzi.