gazzetta immobiliare

Villetta a schiera in Vendita Olbia

135.000
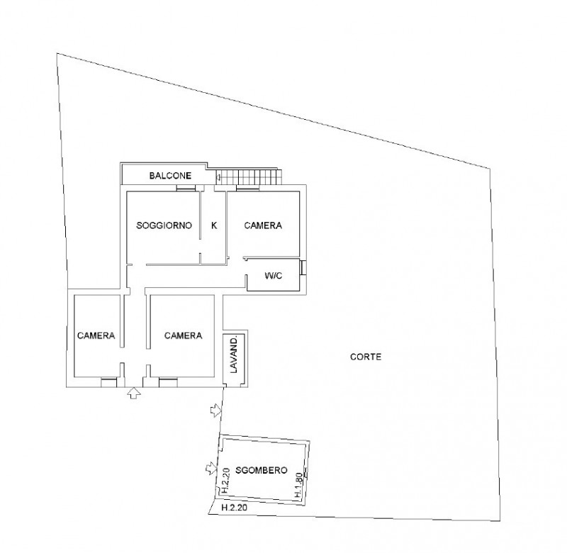
Mq. 120
4 locali

Berchiddeddu

- Olbia (SS) VIA MARSILIO FUCINO 11
Gazzetta Immobiliare 10851463 – Riferimento Agenzia – Casa indipendente con ampio terreno privato – Sa Castanza, Olbia A Sa Castanza, piccola e tranquilla frazione del comune di Olbia, a soli 20 km dal centro città e circa 30 km da San Teodoro, propo... Vedi di più
Prezzo: € 135.000 Fai una controproposta

Contatta per l'annuncio

Confermo di aver letto l'informativa vedi sul trattamento dei dati personali (D.Lgs196/2003) e

* I campi con l'asterisco sono obbligatori


La responsabilità del contenuto dell'annuncio fa capo all'inserzionista, questo portale immobiliare attua controlli ma non può fornire alcuna garanzia circa le informazioni pubblicate da terzi.