gazzetta immobiliare

Appartamento in Vendita Firenze

710.000
Mq. 181
6 locali

San Domenico / Settignano

- Firenze (FI) VIA DELLA PASTORELLA
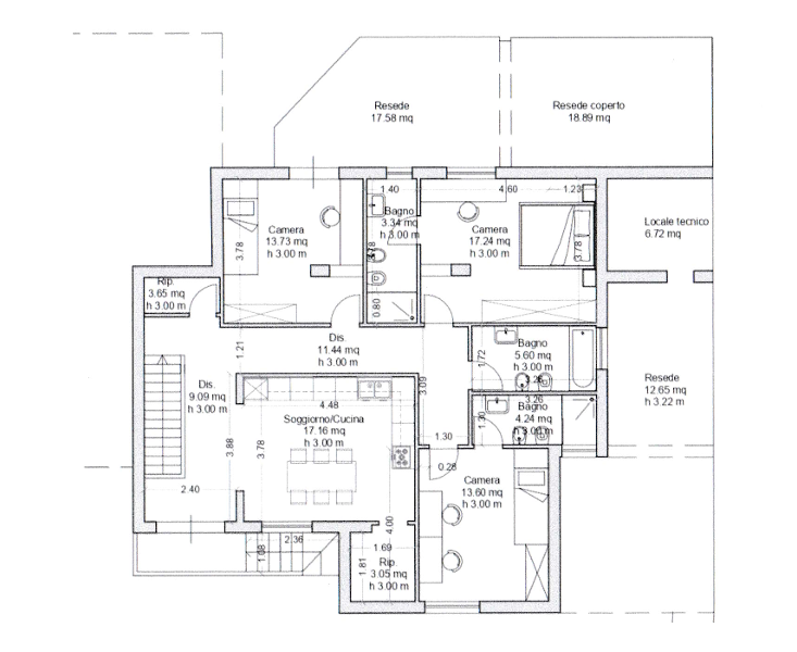
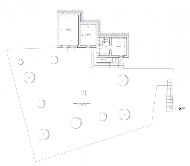
Gazzetta Immobiliare 10765504 – Riferimento Agenzia C11-078 – FIRENZE SETTIGNANO Proponiamo in vendita particolare appartamento con strepitoso giardino panoramico su Firenze di proprietà esclusiva. L’immobile si sviluppa su due livelli e si compone da: ampio ... Vedi di più
Prezzo: € 710.000 Fai una controproposta

Contatta per l'annuncio

Confermo di aver letto l'informativa vedi sul trattamento dei dati personali (D.Lgs196/2003) e

* I campi con l'asterisco sono obbligatori


La responsabilità del contenuto dell'annuncio fa capo all'inserzionista, questo portale immobiliare attua controlli ma non può fornire alcuna garanzia circa le informazioni pubblicate da terzi.