gazzetta immobiliare

Bi/Tri/Quadrifamiliare in Vendita Pianoro

990.000
Mq. 605
5 locali

Rastignano

- Pianoro (BO) via del parco
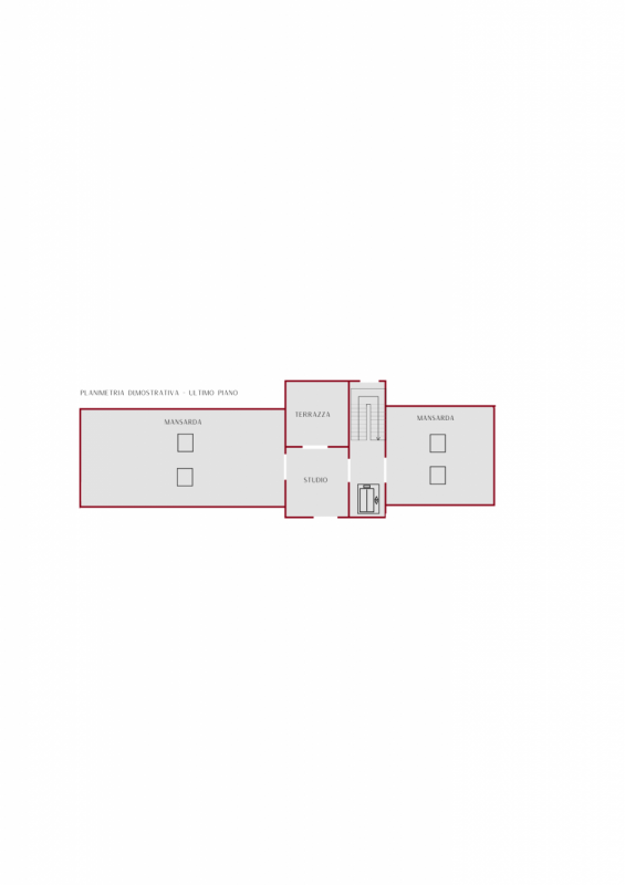
Gazzetta Immobiliare 10730657 – Riferimento Agenzia LA-34 – CONSULENTE: LAURA COMPOSIZIONE: l'immobile si sviluppa su 4 livelli. Al primo primo piano si trova un meraviglioso ingresso di rappresentanza di circa 20 mq che conduce ad un doppio salone con accesso... Vedi di più
Prezzo: € 990.000 Fai una controproposta

Contatta per l'annuncio

Confermo di aver letto l'informativa vedi sul trattamento dei dati personali (D.Lgs196/2003) e

* I campi con l'asterisco sono obbligatori


La responsabilità del contenuto dell'annuncio fa capo all'inserzionista, questo portale immobiliare attua controlli ma non può fornire alcuna garanzia circa le informazioni pubblicate da terzi.