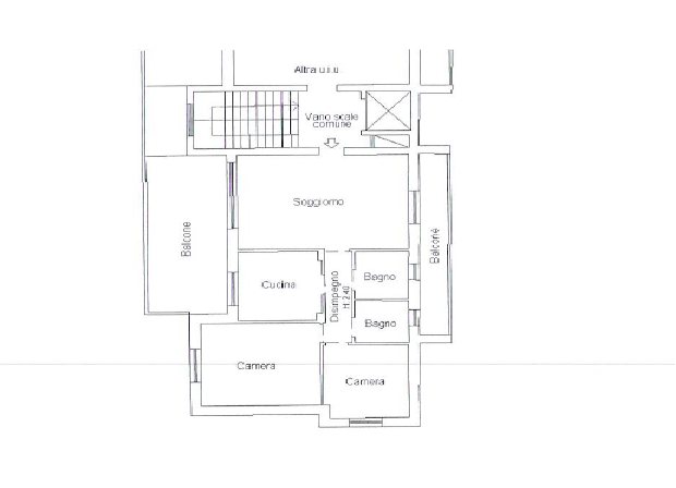
MONZA SAN GIUSEPPE: In contesto dei primi anni '60 con cortile condominiale, PROPONIAMO la vendita di UN AMPIO...
MONZA SAN GIUSEPPE: In contesto dei primi anni '60 con cortile condominiale, PROPONIAMO la vendita di UN AMPIO DUE LOCALI con ASCENSORE, al piano intermedio , composto da ingresso , soggiorno con BALCONE ( esposto sull'interno del cortile ) , camera da letto , bagno e ripostiglio. Cantina di pertinenza.
L'immobile si presenta in DISCRETO stato di manutenzione ( porta blindata , infissi doppio vetro , aria condizionata e pavimentazione in marmette e ceramica ) Riscaldamento autonomo. Doppia esposizione.
FOTO INTERNE VISIBILI NEI PROSSIMI GIORNI !!!
IDEALE per chi è alla ricerca di una soluzione abitativa CON AMPI SPAZI VERDI E PRIVATI senza tuttavia rinunciare alla comodità di raggiungere il centro di Monza o i collegamenti stradali principali per Milano e autostrade in brevissimo tempo o per chi volesse fare un investimento immobiliare.
Siamo specializzati nella compravendita e locazione di immobili ad uso residenziale e commerciale ed offriamo un servizio GRATUITO altamente qualificato di VALUTAZIONE immobiliare, frutto della conoscenza capillare del territorio, oltre a servizi specifici e complementari legati allâintermediazione della casa. Tra questi consulenza mutui, consulenza catastale, consulenza fiscale e legale.
Sul nostro sito https:/// potrai trovare altre proposte immobiliari / valutazione del tuo immobile e consulenza mutuo alle condizioni migliori di mercato. Contatto immediato. --- annuncio pubblicato con GESTIONALEIMMOBILIARE.it
Monza viale Lombardia n.4
Questa soluzione immobiliare è ubicata nel quartiere Rondo Dei Pini, una zona...
Monza viale Lombardia n.4
Questa soluzione immobiliare è ubicata nel quartiere Rondo Dei Pini, una zona in piena fase di riqualificazione con un nuovo supermercato Iperal, un'oasi verde con parco e un biolago suggestivo e ampi spazi dedicati ai bambini. Un investimento sul benessere e sul valore del futuro.
In piccolo contesto condominiale con giardino piantumato con alberi di alto fusto, proponiamo 3 locali composto da: ingresso, soggiorno con angolo cottura, due camere da letto, bagno accessoriato di doccia, locale lavanderia predisposto per lavatrice/asciugatrice, ripostiglio e solaio al piano sottotetto.
L'immobile è stato recentemente ristrutturato:
infissi in pvc doppio vetro
porte interne bianche pantografate
impianti idrico/elettrico nuovi
sanitari sospesi, doccia idromassaggio
tapparelle elettriche
impianto aria condizionata e pompa di calore
pavimentazione in parquet e gress porcellanato
porta d'ingresso blindata
ripostiglio in quota
Appartamento molto luminoso ed arioso, esposto sul lato del giardino condominiale non di passaggio.
Per la sua vicinanza al Parco di Monza, ai principali servizi e raccordi autostradali, questa proprietà è una valida opportunità di rendimento come B&B, affitti brevi.
La presente scheda non costituisce forma di contratto, le informazioni qui contenute sono da ritenersi del tutto indicative e non potranno essere utilizzate come parte integrante in un eventuale contratto di vendita o locazione della proprietà. La presente non vincola in alcun modo la società.
Ufficio responsabile vendita:
Monza via Locatelli n.1
tel: 039.xxxxxx7
email:
CLASSE ENERGETICA: In fase di valutazione
NUOVO 3 LOCALI CON TERRAZZO. Riferimento Divina Servizi Immobiliari di Desio, via Alessandro Volta n. 2; per i...
NUOVO 3 LOCALI CON TERRAZZO. Riferimento Divina Servizi Immobiliari di Desio, via Alessandro Volta n. 2; per info: 328.79.38.829 - 0362.19.75.071. Monza, zona Amati-Stadio, in piccola palazzina signorile di nuova costruzione, di sole 12 famiglie, in classe energetica A4, proponiamo in vendita, splendido 3 LOCALI con esposizione tranquilla, riservata e soleggiata. L'appartamento è composto da gradevole zona giorno con cucina a vista, doppi servizi, due camere da letto ed ampio TERRAZZO ben sfruttabile di circa 30 mq. A scelta, cantina e box. Consegna fine 2026. Ogni soluzione abitativa, è dotata di riscaldamento a pavimento con spesa a consumo, Riciclo d'aria (WMC), predisposizione antifurto ed aria condizionata canalizzata, serramenti in PVC con zanzariere incorporate e tapparelle motorizzate. Scelta totale delle finiture interne tra ottimo capitolato.
La presente scheda non costituisce forma di contratto, le informazioni qui contenute sono da ritenersi del tutto indicative e non potranno essere utilizzate come parte integrante in un eventuale contratto di vendita o locazione della proprietà. la presente non vincola in alcun modo la società.
CLASSE ENERGETICA:
MONZA VIA BERGAMO: In contesto d'epoca dei primi del 1930, con cortile condominiale, PROPONIAMO la vendita di ...
MONZA VIA BERGAMO: In contesto d'epoca dei primi del 1930, con cortile condominiale, PROPONIAMO la vendita di UN DUE LOCALI ARREDATO ( UNICO IMMOBILE PRESENTE SUL BALLATOIO ) , al primo piano SENZA ascensore. L'appartamento è composto da ingresso, soggiorno con cucina a vista , camera da letto ed un bagno. Completa la proprietà un comodo spazio comune condiviso tra i condomini per bici o scooter .
L'immobile si presenta in BUONO stato di manutenzione ( porta blindata , pavimentazione in ceramica, porte interne in legno ed infissi legno doppio vetro ). L' appartamento è disponibile ad essere venduto sia come INVESTIMENTO IMMOBILIARE oppure come prima casa.
L'abitazione è dotata di DOPPIA esposizione . Impianto di riscaldamento autonomo.
IDEALE per chi è alla ricerca di una soluzione abitativa CON AMPI SPAZI VERDI E PRIVATI senza tuttavia rinunciare alla comodità di raggiungere il centro di Monza o i collegamenti stradali principali per Milano e autostrade in brevissimo tempo o per chi volesse fare un investimento immobiliare.
Siamo specializzati nella compravendita e locazione di immobili ad uso residenziale e commerciale ed offriamo un servizio GRATUITO altamente qualificato di VALUTAZIONE immobiliare, frutto della conoscenza capillare del territorio, oltre a servizi specifici e complementari legati allâintermediazione della casa. Tra questi consulenza mutui, consulenza catastale, consulenza fiscale e legale. --- annuncio pubblicato con GESTIONALEIMMOBILIARE.it
Nel cuore di Monza, proponiamo in vendita un elegante appartamento in Classe energetica A3 trilocale situato a...
Nel cuore di Monza, proponiamo in vendita un elegante appartamento in Classe energetica A3 trilocale situato all'interno di una recente palazzina realizzata nel 2019 dal design moderno e raffinato. Lâedificio si distingue per le sue linee contemporanee, ampi balconi vetrati e spazi verdi curati che garantiscono privacy e tranquillità pur essendo vicinissimo ai principali servizi della città .
L'appartamento gode di ambienti luminosi ed è composto da ingresso, da un'ampia zona living con accesso diretto ad un generoso terrazzo vivibile di circa 18 metri, ideale per momenti di relax o cene allâaperto, da una cucina abitabile anch'essa con accesso diretto sullo stesso terrazzo, dal disimpegno che conduce alla zona notte composta da una camera matrimoniale, da una spaziosa camera singola, dal bagno padronale finestrato e con vasca da bagno, ed infine dal bagno di servizio con zona lavanderia e doccia.
La soluzione offre inoltre comfort e dotazioni tecnologiche quali:
- Aria condizionata;
- riscaldamento a pavimento;
- impianto fotovoltaico condominiale;
- VMC (ventilazione meccanica controllata);
- domotica integrata;
- allarme;
- tende da sole automatiche;
Completa la proprietà l'acquisto obbligatorio di un comodo box auto di 20 metri calpestabili ad â¬25.000,00.
La posizione strategica permette rapidi collegamenti verso il centro storico, scuole, negozi ed aree verdi ideali anche per famiglie con bambini oppure professionisti alla ricerca del giusto equilibrio tra comodità cittadina e qualità abitativa moderna.
Non perdere lâoccasione! Contatta subito lâagenzia referente per fissare una visita o ricevere maggiori informazioni su questa esclusiva proposta immobiliare.
La presente pubblicità è da considerarsi puramente indicativa e non costituisce in nessun caso vincolo contrattuale. --- annuncio pubblicato con GESTIONALEIMMOBILIARE.it
MONZA/SAN GIUSEPPE - In posizione strategica, nelle immediate vicinanze per le tangenziale in direzione Milano...
MONZA/SAN GIUSEPPE - In posizione strategica, nelle immediate vicinanze per le tangenziale in direzione Milano - Lecco , in contesto di fine anni '60 con AMPIO giardino condominiale, PROPONIAMO al piano secondo AMPIO TRE LOCALI , più precisamente composto da ingresso , soggiorno doppio con AMPIO TERRAZZO ( esposto ad Est ) e BALCONE , cucina abitabile con BALCONE , due camere , ripostiglio e doppi servizi entrambi finestrati. Completa la proprietà una cantina ed un box singolo di circa 13 mq .
L'immobile internamente si presenta in BUONO stato di manutenzione, (pavimentazione in parquet / ceramica e cotto nel zona giorno, infissi DOPPIO vetro legno, impianto di allarme perimetrale e volumetrico , tapparelle elettriche e porta blindata )
Riscaldamento centralizzato ( SPESE CONDOMINIALI ANNUE , CIRCA ⬠4.000,00 )
L'abitazione è dotata di TRIPLA esposizione ( EST / OVEST / SUD )
IDEALE per chi è alla ricerca di una soluzione abitativa CON AMPI SPAZI VERDI E PRIVATI senza tuttavia rinunciare alla comodità di raggiungere il centro storico di Monza in pochissimi secondi.
Siamo specializzati nella compravendita e locazione di immobili ad uso residenziale e commerciale ed offriamo un servizio GRATUITO altamente qualificato di VALUTAZIONE immobiliare, frutto della conoscenza capillare del territorio, oltre a servizi specifici e complementari legati allâintermediazione della casa. Tra questi consulenza mutui, consulenza catastale, consulenza fiscale e legale.
Sul nostro sito https:/// potrai trovare altre proposte immobiliari / valutazione del tuo immobile e consulenza mutuo alle condizioni migliori di mercato. Contatto immediato. --- annuncio pubblicato con GESTIONALEIMMOBILIARE.it
Nel cuore di Monza, nel ricercato quartiere San Giuseppe, ti presentiamo una casa che unisce solidit?, comfort...
Nel cuore di Monza, nel ricercato quartiere San Giuseppe, ti presentiamo una casa che unisce solidit?, comfort e praticit? quotidiana. All?interno di un elegante contesto condominiale degli anni ?60, ben tenuto e dotato di servizio di portineria attivo tutto il giorno, questo appartamento al piano rialzato ti accoglie con spazi generosi e una distribuzione intelligente, perfetta per chi desidera vivere con comodit? ogni ambiente. Con i suoi 85 mq, la casa offre: xxxxx; Un luminoso soggiorno dove rilassarsi dopo una lunga giornata xxxxx;️ Una cucina abitabile, il luogo ideale per condividere pranzi e cene in famiglia xxxxx;️ Due camere da letto spaziose, perfette per una coppia, una famiglia o per chi desidera uno studio xxxxx; Un bagno completamente rinnovato negli impianti xxxxx; Un pratico ripostiglio Gli impianti di cucina e bagno sono stati rifatti, garantendo tranquillit? e funzionalit?. Le tapparelle elettriche e l?aria condizionata aggiungono quel comfort moderno che fa la differenza nella vita di tutti i giorni. Il balcone regala uno sfogo esterno prezioso, mentre la cantina al piano seminterrato (PS1) completa l?offerta con uno spazio utile e sempre indispensabile. xxxxx; Prezzo: ? 187.000,00 xxxxx; Libero subito Una soluzione ideale per chi cerca un?abitazione pronta da vivere, in una zona servita e strategica, a pochi minuti dal centro e ben collegata. Non ? solo un appartamento. ? l?opportunit? concreta di sentirsi finalmente a casa. xxxxx; Contattaci per fissare una visita. La tua nuova vita a Monza ti sta aspettando. - SCxxxxxx0
--- ULTIME DISPONIBILITÃ---
MONZA/SAN CARLO: a pochi minuti dal centro di Monza, in CONTESTO del 2025, con g...
--- ULTIME DISPONIBILITÃ---
MONZA/SAN CARLO: a pochi minuti dal centro di Monza, in CONTESTO del 2025, con giardino condominiale ( RESIDENZA PACINOTTI ), in CLASSE ENERGETICA A2, dotato di ascensore condominiale, proponiamo la vendita di un TRE LOCALI con BALCONE e TERRAZZO.
L'appartamento più precisamente è composto da ingresso , soggiorno con TERRAZZINO vivibile ( esposto a sud ) , cucina abitabile con BALCONE ( esposta a Nord ) , due camere e doppi servizi.
L'appartamento internamente si presenta in fase di ultimazione lavori con scelta delle finiture interne da capitolato , visibile tramite lo showroom PORCELANOSA di Milano , ( porta blindata, infissi in alluminio legno doppio vetro, tapparelle elettriche , aria canalizzata e pavimentazione in laminato parquet ) Riscaldamento centralizzato a pavimento .
La cantina al piano interrato e la possibilità di un AMPIO box ( numero 6 ) , ad euro 40.000,00 completano la proprietà .
L'abitazione è dotata di TRIPLA esposizione (NORD / SUD / EST). Consegna immediata.
ATTUALMENTE DISPONIBILI:
3 LOCALI , SECONDO PIANO AD EURO 470.000,00
3 LOCALI, TERZO PIANO AD EURO 480.000,00 CON CANTINA E BOX DI PERTINENZA
IDEALE per chi è alla ricerca di una soluzione abitativa CON AMPI SPAZI VERDI E PRIVATI senza tuttavia rinunciare alla comodità di raggiungere i collegamenti stradali principali per Milano e autostrade e il centro di Monza in brevissimo tempo.
Siamo specializzati nella compravendita e locazione di immobili ad uso residenziale e commerciale ed offriamo un servizio GRATUITO altamente qualificato di VALUTAZIONE immobiliare, frutto della conoscenza capillare del territorio, oltre a servizi specifici e complementari legati allâintermediazione della casa. Tra questi consulenza mutui, consulenza catastale, consulenza fiscale e legale.
Sul nostro sito https:/// potrai trovare altre proposte immobiliari / valutazione del tuo immobile e consulenza mutuo alle condizioni migliori di mercato. Contatto immediato. --- annuncio pubblicato con GESTIONALEIMMOBILIARE.it
In una delle zone più ricercate di Monza, a pochi passi dallo Stadio di Monza, proponiamo in vendita un lumin...
In una delle zone più ricercate di Monza, a pochi passi dallo Stadio di Monza, proponiamo in vendita un luminoso appartamento trilocale di circa 100 mq situato al quarto piano di uno stabile signorile in Via Morandi 4. L'immobile è stato recentemente oggetto di una completa ristrutturazione che ha valorizzato gli spazi interni rendendoli accoglienti e moderni.
L'appartamento si distingue per l'ampio soggiorno doppio, impreziosito da grandi finestre che garantiscono luce naturale durante tutto il giorno e permettono l'accesso diretto ad uno dei due spaziosi balconi vivibili, ideali per momenti di relax all'aperto. La cucina abitabile separata presenta arredi su misura ed è dotata anchâessa dellâaccesso al balcone.
La distribuzione interna offre inoltre due camere da letto ben dimensionate e doppi servizi finestrati, perfetti sia per famiglie che desiderano comfort sia per chi cerca ambienti versatili anche come studio o camera ospiti. I pavimenti sono uniformemente rivestiti in gres porcellanato chiaro che dona eleganza agli ambienti; infissi nuovi assicurano isolamento termico/acustico ottimale.
Lo stabile dispone di ascensore ed è immerso nel verde condominiale curato: la posizione strategica consente facile accesso ai principali servizi (scuole, supermercati) oltre alla vicinanza alle fermate dei mezzi pubblici utilissimi per raggiungere Milano o le altre località della Brianza rapidamente. --- annuncio pubblicato con GESTIONALEIMMOBILIARE.it
Monza via Montelungo
Proponiamo nuova residenza in fase di costruzione.
Il progetto prevede la realizzazione d...
Monza via Montelungo
Proponiamo nuova residenza in fase di costruzione.
Il progetto prevede la realizzazione di una palazzina ad uso residenziale di tre piani fuori terra e uno interrato, edificata in classe energetica A3; parte del lotto, facente parte del progetto, verrà riqualificato e destinato ad aera verde comunale con piante di alto fusto.
L'intervento prevede l'utilizzo di materiali e tecnologie di ultima generazione conformi a quanto previsto nella relazione energetica ed acustica:
Impianto fotovoltaico, riscaldamento a pavimento tramite pannelli radianti, impianto elettrico a gestitone tradizionale con comandi locali presenti negli ambienti oppure tramite applicazione Home+Control già configurata per il cliente, infissi in legno laccato con vetrocamera a basso emissivo e doppio vetro, tapparelle elettriche in alluminio, predisposizione impianto di raffrescamento mediante split e impianto di allarme volumetrico/perimetrale, ventilazione meccanica (VMC) capace di rinnovare costantemente l'aria indoor senza perdita di temperatura deumidificando gli ambienti per migliorare il benessere abitativo come la qualità dell'aria.
Disponibili unità di varie tipologie e metrature dal piano terra al piano terzo, con giardini ad uso esclusivo o ampi terrazzi e balconi.
Nel dettaglio proponiamo 3 locali sito al piano terra composto da: ingresso, zona living con angolo cottura, camera matrimoniale con cabina armadio, cameretta, doppi servizi, giardino con portico coperto e locale cantina.
Ampia scelta capitolato interno e possibilità di adattare gli ambienti alle proprie esigenze, ove possibile, modificando ampiezza e disposizione dei locali con la supervisione dell'architetto/progettista.
Possibilità box singoli e doppi.
CLASSE ENERGETICA:
Monza via Montelungo
Proponiamo nuova residenza in fase di costruzione.
Il progetto prevede la realizzazione d...
Monza via Montelungo
Proponiamo nuova residenza in fase di costruzione.
Il progetto prevede la realizzazione di una palazzina ad uso residenziale di tre piani fuori terra e uno interrato, edificata in classe energetica A3; parte del lotto, facente parte del progetto, verrà riqualificato e destinato ad aera verde comunale con piante di alto fusto.
L'intervento prevede l'utilizzo di materiali e tecnologie di ultima generazione conformi a quanto previsto nella relazione energetica ed acustica:
Impianto fotovoltaico, riscaldamento a pavimento tramite pannelli radianti, impianto elettrico a gestitone tradizionale con comandi locali presenti negli ambienti oppure tramite applicazione Home+Control già configurata per il cliente, infissi in legno laccato con vetrocamera a basso emissivo e doppio vetro, tapparelle elettriche in alluminio, predisposizione impianto di raffrescamento mediante split e impianto di allarme volumetrico/perimetrale, ventilazione meccanica (VMC) capace di rinnovare costantemente l'aria indoor senza perdita di temperatura deumidificando gli ambienti per migliorare il benessere abitativo come la qualità dell'aria.
Disponibili unità di varie tipologie e metrature dal piano terra al piano terzo, con giardini ad uso esclusivo o ampi terrazzi e balconi.
Nel dettaglio proponiamo 3 locali sito al piano primo composto da: ingresso, zona living con angolo cottura (oppure abitabile), due camere da letto, doppi servizi, ampio terrazzo, due balconi e locale cantina.
Ampia scelta capitolato interno e possibilità di adattare gli ambienti alle proprie esigenze, ove possibile, modificando ampiezza e disposizione dei locali con la supervisione dell'architetto/progettista.
Possibilità box singoli e doppi.
CLASSE ENERGETICA:
MONZA CEDERNA : In contesto d'epoca SENZA spese condominiali , proponiamo la vendita di una soluzione su tre l...
MONZA CEDERNA : In contesto d'epoca SENZA spese condominiali , proponiamo la vendita di una soluzione su tre livelli , TERRA CIELO.
L'immobile è composta dal piano terreno con AMPIO ripostiglio , scala interna dove si accede alla zona giorno con soggiorno e cucina a vista ed AMPIO SOTTOTETTO . Internamente si presenta in BUONO stato di manutenzione ( porta blindata, infissi in alluminio doppio vetro, zanzariere e pavimentazione in ceramica / parquet ). Completa la proprietà un box singolo di circa 14 mq.
L'abitazione è dotata di DOPPIA esposizione . Impianto di riscaldamento autonomo. Disponibile da subito.
IDEALE per chi è alla ricerca di una soluzione abitativa CON AMPI SPAZI VERDI E PRIVATI senza tuttavia rinunciare alla comodità di raggiungere i collegamenti stradali principali per Milano e autostrade in brevissimo tempo.
Siamo specializzati nella compravendita e locazione di immobili ad uso residenziale e commerciale ed offriamo un servizio GRATUITO altamente qualificato di VALUTAZIONE immobiliare, frutto della conoscenza capillare del territorio, oltre a servizi specifici e complementari legati allâintermediazione della casa. Tra questi consulenza mutui, consulenza catastale, consulenza fiscale e legale.
Sul nostro sito https:/// potrai trovare altre proposte immobiliari / valutazione del tuo immobile e consulenza mutuo alle condizioni migliori di mercato. Contatto immediato. --- annuncio pubblicato con GESTIONALEIMMOBILIARE.it
MONZA San Rocco proponiamo in grazioso condominio servito da ascensore, appartamento trilocale posto al terzo ...
MONZA San Rocco proponiamo in grazioso condominio servito da ascensore, appartamento trilocale posto al terzo piano con riscaldamento autonomo.
L'immobile è così diviso: ingresso, soggiorno con balcone, cucina semi abitabile, camera de letto con balcone, oltre mansarda abitabile con camera matrimoniale, bagno e piccolo ripostiglio. Cantina inclusa, possibilità di acquistare un autorimessa doppia. Richiesta euro 235.000 Rif. annuncio 1787.
Per informazioni e visite telefonare ai seguenti numeri xxxxxx3529 xxxxxx3799 oppure visitare il nostro sito INDIRIZZI NOSTRI UFFICI: Monza (MB) Via Don Luigi Sturzo, 7 Cecina (LI) via S. Venier 5. L' Agenzia Immobiliare Italinvest mira ad assicurare alla propria clientela sicurezza nel vendere, tranquillità e trasparenza nell' acquistare. Vi accompagnerà attraverso tutte le fasi della compravendita e gestione immobiliare, offrendoVi un pacchetto di servizi professionale quali: Servizio fotografico, Analisi dei documenti e stima del valore dell'immobile - Promozione dell'immobile sul mercato attraverso portali immobiliari - Visita all'immobile e consegna di materiale tecnico - Accertamenti urbanistici, catastali e ipotecari sull'immobile - Proposta di acquisto e/o contratto preliminare di compravendita e relativa registrazione ai sensi di Legge - Coordinamento dei professionisti che dovessero partecipare al buon esito della compravendita (tecnici, notai e commercialisti) - Consegna di tutti i documenti necessari per la stipula del rogito notarile al notaio di fiducia dell'acquirente. Presenza al rogito notarile.
CLASSE ENERGETICA: D 116,41 kWh/m3 a
AMPIO E LUMINOSO TRILOCALE - VUOTO e LIBERO SUBITO
Appartamento TRILOCALE - Vicinanze Stazione e Policlinico M...
AMPIO E LUMINOSO TRILOCALE - VUOTO e LIBERO SUBITO
Appartamento TRILOCALE - Vicinanze Stazione e Policlinico Mister House propone in vendita appartamento VUOTO e libero subito, composto da: Ingresso che apre su una LUMINOSA sala, cucina abitabile, ampio disimpegno, una camera da letto spaziosa, una cameretta e un bagno. INFISSI nuovi e IMPIANTO ELETTRICO rifatto! Posizione e Servizi: Situato in una zona tranquilla e ben mantenuta, l'appartamento è circondato da un bel giardino condominiale. La vicinanza a negozi, mezzi di trasporto, la Stazione Ferroviaria e il Policlinico rende questa ubicazione particolarmente comoda per la vita quotidiana. Chi cerca un'abitazione pratica e senza lavori da fare in una zona ben collegata della città . Professionisti del settore sanitario o pendolari che apprezzano la prossimità ai servizi essenziali e ai trasporti pubblici. Per ulteriori dettagli o per organizzare una visita, non esitate a contattare Mister House. --- annuncio pubblicato con GESTIONALEIMMOBILIARE.it
SPLENDIDO BILOCALE COMPLETAMENTE ARREDATO LIBERO SUBITO!
Pronto per essere abitato da subito, senza necessitÃ...
SPLENDIDO BILOCALE COMPLETAMENTE ARREDATO LIBERO SUBITO!
Pronto per essere abitato da subito, senza necessità di ulteriori interventi.
Posizione centrale: Vivere nel cuore di Monza significa avere a disposizione tutto ciò di cui hai bisogno, a pochi passi dal Comune, negozi, farmacie, alimentari, ristoranti e mezzi pubblici. Una location ideale per chi ama la comodità e la vita cittadina.
Non perdere l'opportunità di vivere in un caratteristico bilocale completamente arredato, pronto per essere abitato! Situato nel centro di Monza, questo appartamento moderno e funzionale è ideale per chi cerca comodità e stile.
Composizione dell'immobile:
Ampia sala con cucina a vista, perfetta per momenti di convivialità .
Disimpegno che conduce alla spaziosa camera matrimoniale con cabina armadio, per un comfort senza pari.
Antibagno e bagno, dotati di tutti i comfort, lavatrice ed asciugatrice!
Ripostiglio aggiuntivo per ottimizzare lo spazio.
Caratteristiche principali:
Arredato con gusto, in stile moderno e attuale.
Dotato di tutti i mobili e elettrodomestici necessari (frigo, lavastoviglie, ecc.)
POSTO AUTO nel prezzo dell'appartamento! --- annuncio pubblicato con GESTIONALEIMMOBILIARE.it