gazzetta immobiliare

Casa indipendente in Vendita Santo Stefano Ticino

199.000
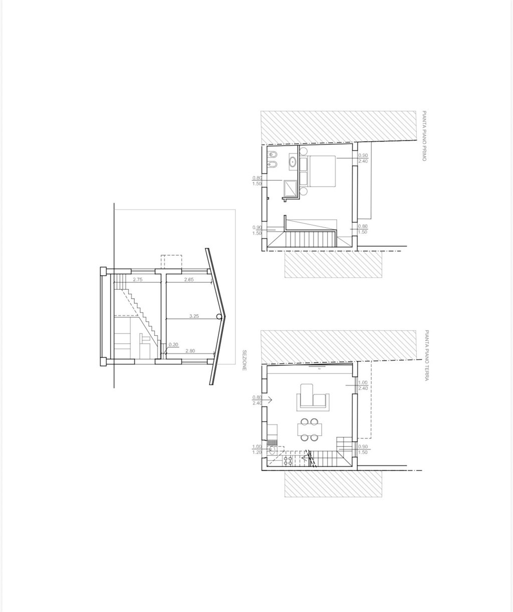
Mq. 70
2 locali

Santo Stefano Ticino

(MI)
Gazzetta Immobiliare 10933274 – Riferimento Agenzia 3923_4238 – In prossima realizzazione, con avvio lavori a breve e consegna prevista fine 2026; possibilit? di prenotare bilocale su due livelli di circa 70 mq commerciali, con giardino privato di 110 mq. L?immob... Vedi di più
Prezzo: € 199.000 Fai una controproposta

Contatta per l'annuncio

Confermo di aver letto l'informativa vedi sul trattamento dei dati personali (D.Lgs196/2003) e

* I campi con l'asterisco sono obbligatori


La responsabilità del contenuto dell'annuncio fa capo all'inserzionista, questo portale immobiliare attua controlli ma non può fornire alcuna garanzia circa le informazioni pubblicate da terzi.