gazzetta immobiliare

Villa in Vendita Vernio

619.000
Mq. 480
7 locali

San Quirico

- Vernio (PO) strada vicinane celle
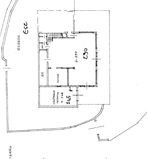
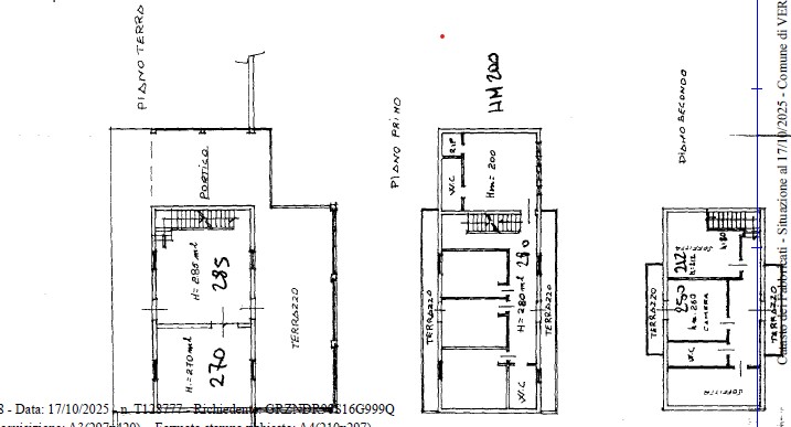
Gazzetta Immobiliare 10768154 – Riferimento Agenzia DC619 - CELLE – Vernio- località "Celle" . Disponiamo di una villa libera su 4 lati di 480mq in stile rustico in buono stato e completamente ristrutturata negli anni 2000. L'immobile circondato da oltre due ettar... Vedi di più
Prezzo: € 619.000 Fai una controproposta

Contatta per l'annuncio

Confermo di aver letto l'informativa vedi sul trattamento dei dati personali (D.Lgs196/2003) e

* I campi con l'asterisco sono obbligatori


La responsabilità del contenuto dell'annuncio fa capo all'inserzionista, questo portale immobiliare attua controlli ma non può fornire alcuna garanzia circa le informazioni pubblicate da terzi.