gazzetta immobiliare

Appartamento in Vendita Modica

250.000
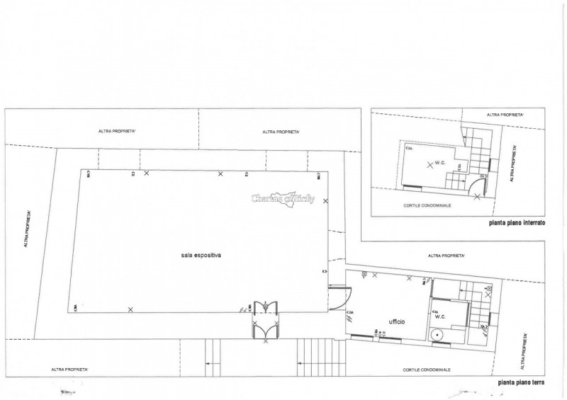
Mq. 187
3 locali

Modica Bassa

- Modica (RG)
Gazzetta Immobiliare 10767512 – Riferimento Agenzia L 2132 – Nel cuore suggestivo di Modica Bassa, lungo la pittoresca via Campailla e immerso nello splendore del centro storico barocco patrimonio UNESCO, proponiamo in vendita due unità immobiliari indipendent... Vedi di più
Prezzo: € 250.000 Fai una controproposta

Contatta per l'annuncio

Confermo di aver letto l'informativa vedi sul trattamento dei dati personali (D.Lgs196/2003) e

* I campi con l'asterisco sono obbligatori


La responsabilità del contenuto dell'annuncio fa capo all'inserzionista, questo portale immobiliare attua controlli ma non può fornire alcuna garanzia circa le informazioni pubblicate da terzi.