gazzetta immobiliare

Appartamento in Vendita Modena

680.000
Mq. 408
7 locali

Sant?Agnese nuova

- Modena (MO) VIA , ALBA
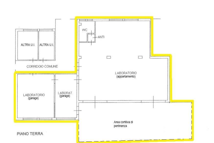
Gazzetta Immobiliare 10727762 – Riferimento Agenzia VB0624_3 – VB0624_3 Nostra esclusiva, Sant'Agnese Nuova, strette ad.ze Policlinico/Università, in strada tranquilla e riparata, vendesi luminoso attico sito al piano secondo s./a. composto da: ingresso, s... Vedi di più
Prezzo: € 680.000 Fai una controproposta

Contatta per l'annuncio

Confermo di aver letto l'informativa vedi sul trattamento dei dati personali (D.Lgs196/2003) e

* I campi con l'asterisco sono obbligatori


La responsabilità del contenuto dell'annuncio fa capo all'inserzionista, questo portale immobiliare attua controlli ma non può fornire alcuna garanzia circa le informazioni pubblicate da terzi.