gazzetta immobiliare

Bi/Tri/Quadrifamiliare in Vendita Montepulciano

245.000
Mq. 175
5 locali

Acquaviva

- Montepulciano (SI) via pian delle noci
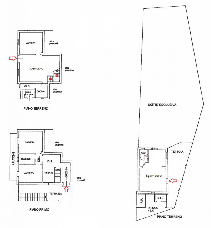
Gazzetta Immobiliare 10684039 – Riferimento Agenzia VB118 – In località Acquaviva, in contesto collinare a breve distanza da Montepulciano, si propone la vendita di porzione di fabbricato costituita da una abitazione su due livelli di complessivi mq. 120 con ... Vedi di più
Prezzo: € 245.000 Fai una controproposta

Contatta per l'annuncio

Confermo di aver letto l'informativa vedi sul trattamento dei dati personali (D.Lgs196/2003) e

* I campi con l'asterisco sono obbligatori


La responsabilità del contenuto dell'annuncio fa capo all'inserzionista, questo portale immobiliare attua controlli ma non può fornire alcuna garanzia circa le informazioni pubblicate da terzi.