gazzetta immobiliare

Bi/Trilocale in Vendita Casale Monferrato

128.000
Mq. 92
3 locali

Casale Monferrato

- Casale Monferrato (AL) Via Candido Poggio 6
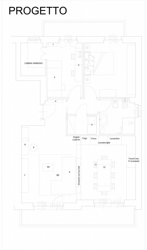
Gazzetta Immobiliare 10677554 – Riferimento Agenzia a653 – Casale Monferrato, zona Ospedale, in piccola palazzina con affaccio sui giardini, vendesi al secondo piano fornito di ascensore, luminoso appartamento completamente ristrutturato elegantemente rifinit... Vedi di più
Prezzo: € 128.000 Fai una controproposta

Contatta per l'annuncio

Confermo di aver letto l'informativa vedi sul trattamento dei dati personali (D.Lgs196/2003) e

* I campi con l'asterisco sono obbligatori


La responsabilità del contenuto dell'annuncio fa capo all'inserzionista, questo portale immobiliare attua controlli ma non può fornire alcuna garanzia circa le informazioni pubblicate da terzi.