gazzetta immobiliare

Bi/Tri/Quadrifamiliare in Vendita Vicenza

650.000
Mq. 620
5 locali

Santa Bertilla

- Vicenza (VI) Via Legione Antonini
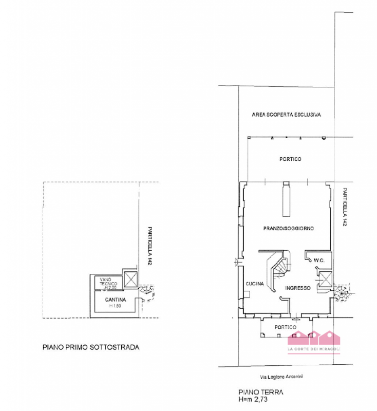
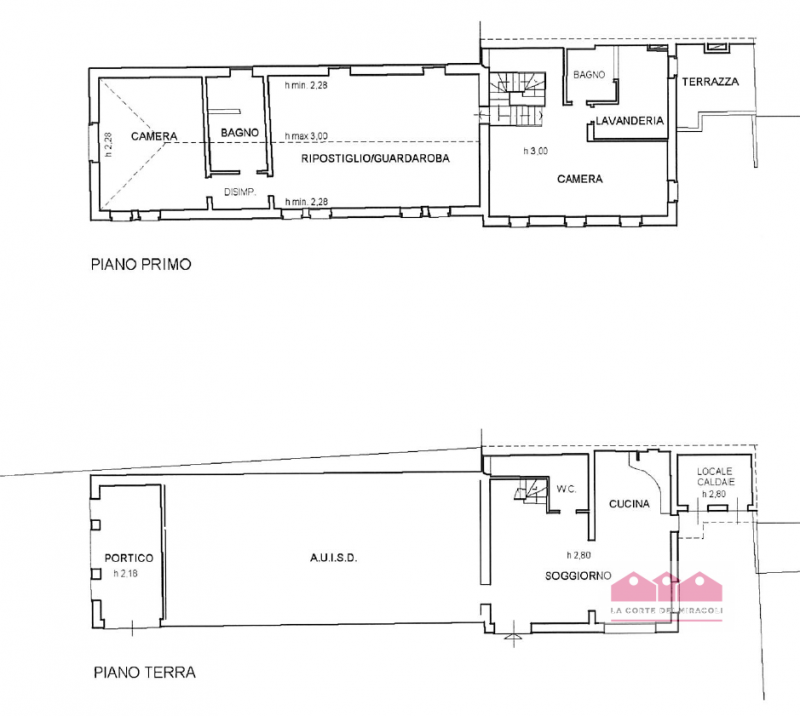
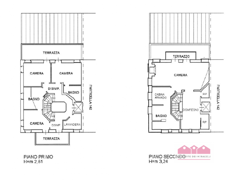
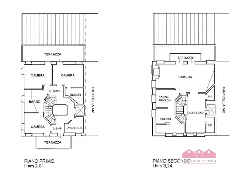
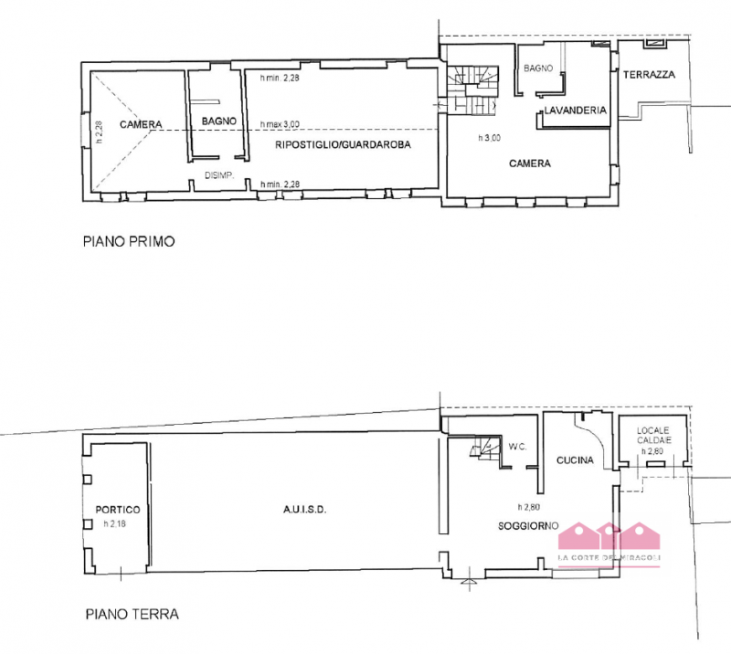
Gazzetta Immobiliare 10669622 – Riferimento Agenzia VBIF17 – VICENZA: CASA INDIPENDENTE CON GIARDINO ZONA LEGIONE ANTONINI, 420 MQ RISTRUTTURATA NEL 1991, SOGGIORNO, PRANZO CUCINA, PORTICO, SERVIZIO, CANTINA; QUATTRO CAMERE GRANDI, QUATTRO BAGNI, UNA CABINA ARM... Vedi di più
Prezzo: € 650.000 Fai una controproposta

Contatta per l'annuncio

Confermo di aver letto l'informativa vedi sul trattamento dei dati personali (D.Lgs196/2003) e

* I campi con l'asterisco sono obbligatori


La responsabilità del contenuto dell'annuncio fa capo all'inserzionista, questo portale immobiliare attua controlli ma non può fornire alcuna garanzia circa le informazioni pubblicate da terzi.