gazzetta immobiliare

Appartamento in Vendita Castiglione del Lago

139.000
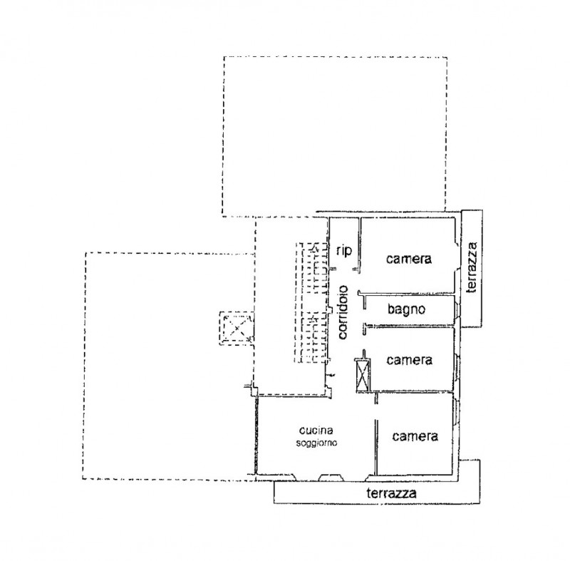
Mq. 95
4 locali

Castiglione del Lago - Centro

- Castiglione del Lago (PG) Via Nino Bixio
Gazzetta Immobiliare 10368954 – Riferimento Agenzia AP538 – AP538 - Vendesi appartamento nel centro di Castiglione del Lago. DESCRIZIONE: l'appartamento di 95 mq si trova al primo piano di un piccolo condominio, ed è così composto: ingresso, soggiorno con an... Vedi di più
Prezzo: € 139.000 Fai una controproposta

Contatta per l'annuncio

Confermo di aver letto l'informativa vedi sul trattamento dei dati personali (D.Lgs196/2003) e

* I campi con l'asterisco sono obbligatori


La responsabilità del contenuto dell'annuncio fa capo all'inserzionista, questo portale immobiliare attua controlli ma non può fornire alcuna garanzia circa le informazioni pubblicate da terzi.