gazzetta immobiliare

Villa in Vendita Loreggia

680.000
Mq. 400
6 locali

Loreggia

- Loreggia (PD)
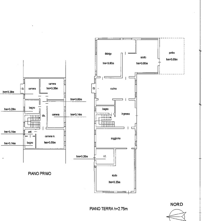
Gazzetta Immobiliare 8575204 – Riferimento Agenzia NB200026 – Proponiamo in vendita a Loreggia caratteristico rustico immerso in un parco. L'immobile, in buono stato è tenuto sempre in ottime condizioni, è situato all'interno di un parco di 30.000 mq caratter... Vedi di più
Prezzo: € 680.000 Fai una controproposta

Contatta per l'annuncio

Confermo di aver letto l'informativa vedi sul trattamento dei dati personali (D.Lgs196/2003) e

* I campi con l'asterisco sono obbligatori


La responsabilità del contenuto dell'annuncio fa capo all'inserzionista, questo portale immobiliare attua controlli ma non può fornire alcuna garanzia circa le informazioni pubblicate da terzi.