gazzetta immobiliare

Appartamento in Vendita Rende

180.000
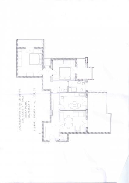
Mq. 134
3 locali

Rende

(CS)
Gazzetta Immobiliare 8157205 – Riferimento Agenzia 153 – RENDE - VIA CRATI - Appartamento posto al primo piano co? composto: ingresso, corridoio, soggiorno, cucina, ripostiglio, bagno, due stanze da letto, quattro balconi, posto auto scoperto e soffitta.... Vedi di più
Prezzo: € 180.000 Fai una controproposta

Contatta per l'annuncio

Confermo di aver letto l'informativa vedi sul trattamento dei dati personali (D.Lgs196/2003) e

* I campi con l'asterisco sono obbligatori


La responsabilità del contenuto dell'annuncio fa capo all'inserzionista, questo portale immobiliare attua controlli ma non può fornire alcuna garanzia circa le informazioni pubblicate da terzi.