gazzetta immobiliare

Palazzo/Stabile in Vendita Pasian di Prato

235.000
Mq. 200
5 locali

Pasian di Prato - Centro

- Pasian di Prato (UD) Via Colloredo, 7
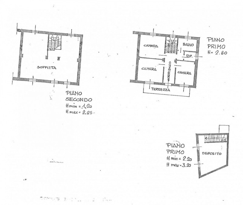
Gazzetta Immobiliare 10982925 – Riferimento Agenzia RH419 – A Pasian di Prato proponiamo in vendita un interessante complesso immobiliare composto da due unità abitative adiacenti e un edificio accessorio su due livelli, ideale sia per uso residenziale sia co... Vedi di più
Prezzo: € 235.000 Fai una controproposta

Contatta per l'annuncio

Confermo di aver letto l'informativa vedi sul trattamento dei dati personali (D.Lgs196/2003) e

* I campi con l'asterisco sono obbligatori


La responsabilità del contenuto dell'annuncio fa capo all'inserzionista, questo portale immobiliare attua controlli ma non può fornire alcuna garanzia circa le informazioni pubblicate da terzi.