gazzetta immobiliare

Appartamento in Vendita Altamura

250.000
Mq. 105
4 locali

Altamura

- Altamura (BA) Via Edmondo De Amicis
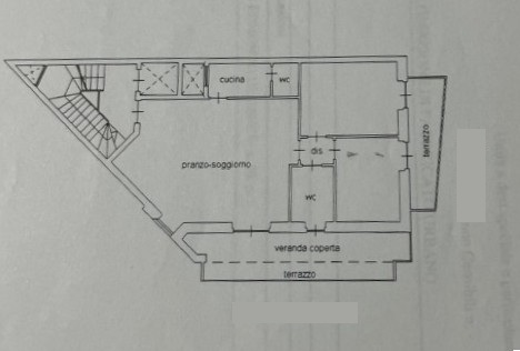
Gazzetta Immobiliare 10976998 – Riferimento Agenzia ALTA5 – IMMOBILIARE MATERA, ad Altamura via Carpentino, propone in vendita un appartamento al secondo piano superficie di circa 90 mq e circa 20 di balcone, composta con un ingresso soggiorno pranzo e camera ... Vedi di più
Prezzo: € 250.000 Fai una controproposta

Contatta per l'annuncio

Confermo di aver letto l'informativa vedi sul trattamento dei dati personali (D.Lgs196/2003) e

* I campi con l'asterisco sono obbligatori


La responsabilità del contenuto dell'annuncio fa capo all'inserzionista, questo portale immobiliare attua controlli ma non può fornire alcuna garanzia circa le informazioni pubblicate da terzi.