gazzetta immobiliare

Bi/Trilocale in Vendita Parma

185.000
Mq. 100
2 locali

Parma

(PR) Via Benedetto Bacchini, 1
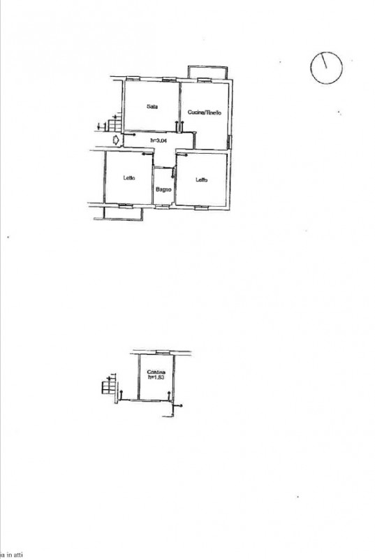
Gazzetta Immobiliare 10970988 – Riferimento Agenzia Esclusivo Appartamento Ristrutturato con 2 balconi in Via Benedetto Bacchini, Parma! Un'opportunità imperdibile ti attende nel cuore di Parma, in Via Benedetto Bacchini, 1. Prop... Vedi di più
Prezzo: € 185.000 Fai una controproposta

Contatta per l'annuncio

Confermo di aver letto l'informativa vedi sul trattamento dei dati personali (D.Lgs196/2003) e

* I campi con l'asterisco sono obbligatori


La responsabilità del contenuto dell'annuncio fa capo all'inserzionista, questo portale immobiliare attua controlli ma non può fornire alcuna garanzia circa le informazioni pubblicate da terzi.