gazzetta immobiliare

Appartamento in Vendita Matino

95.000
Mq. 100
4 locali

Matino - Centro

- Matino (LE) Via Don Minzoni
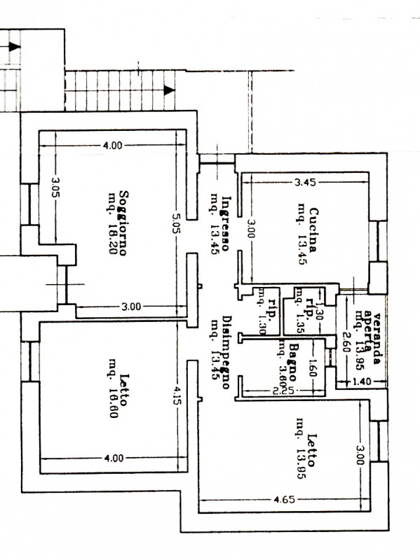
Gazzetta Immobiliare 10966780 – Riferimento Agenzia MAF-95DON – In una zona residenziale tranquilla e ben servita, a pochi passi dal centro città, proponiamo in vendita un ampio e luminoso appartamento bifamiliare di circa 100 mq. L’ingresso si apre su un corri... Vedi di più
Prezzo: € 95.000 Fai una controproposta

Contatta per l'annuncio

Confermo di aver letto l'informativa vedi sul trattamento dei dati personali (D.Lgs196/2003) e

* I campi con l'asterisco sono obbligatori


La responsabilità del contenuto dell'annuncio fa capo all'inserzionista, questo portale immobiliare attua controlli ma non può fornire alcuna garanzia circa le informazioni pubblicate da terzi.