gazzetta immobiliare

Bi/Trilocale in Vendita Mezzolombardo

199.000
Mq. 49
2 locali

Mezzolombardo

- Mezzolombardo (TN) Mezzolombardo via Trento
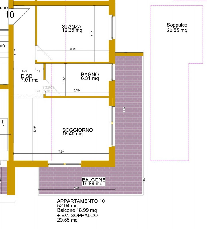
Gazzetta Immobiliare 10943694 – Riferimento Agenzia 25-057M1 – Il bilocale proposto, orientato a Sud-Ovest, è posizionato al piano primo e ultimo ed è costituito da ingresso, disbrigo, soggiorno cucina con ampie vetrate, bagno finestrato, stanza matrimoniale e ... Vedi di più
Prezzo: € 199.000 Fai una controproposta

Contatta per l'annuncio

Confermo di aver letto l'informativa vedi sul trattamento dei dati personali (D.Lgs196/2003) e

* I campi con l'asterisco sono obbligatori


La responsabilità del contenuto dell'annuncio fa capo all'inserzionista, questo portale immobiliare attua controlli ma non può fornire alcuna garanzia circa le informazioni pubblicate da terzi.