gazzetta immobiliare

Attico/Mansarda in Vendita Camponogara

420.000
Mq. 350
5 locali

Calcroci

- Camponogara (VE)
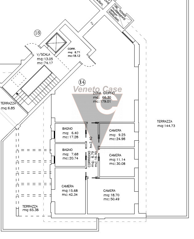
Gazzetta Immobiliare 10938359 – Riferimento Agenzia 318-FCAL – CAMPONOGARA - ATTICO ALL'ULTIMO PIANO SU NUOVA COSTRUZIONE Proponiamo in vendita un magnifico attico dalle generose dimensioni La superficie abitabile si estende su circa 350 mq, l'attico è composto ... Vedi di più
Prezzo: € 420.000 Fai una controproposta

Contatta per l'annuncio

Confermo di aver letto l'informativa vedi sul trattamento dei dati personali (D.Lgs196/2003) e

* I campi con l'asterisco sono obbligatori


La responsabilità del contenuto dell'annuncio fa capo all'inserzionista, questo portale immobiliare attua controlli ma non può fornire alcuna garanzia circa le informazioni pubblicate da terzi.