gazzetta immobiliare

Bi/Tri/Quadrifamiliare in Vendita Montegrotto Terme

470.000
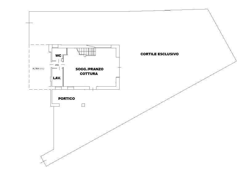
Mq. 180
4 locali

Montegrotto Terme

- Montegrotto Terme (PD) Via Socrate
Gazzetta Immobiliare 10925808 – Riferimento Agenzia M027 – MONTEGROTTO TERME Proponiamo in vendita una recentissima porzione di villa in trifamiliare, situata a pochi passi dal centro della cittadina termale. Questa proprietà si distingue per le prestigio... Vedi di più
Prezzo: € 470.000 Fai una controproposta

Contatta per l'annuncio

Confermo di aver letto l'informativa vedi sul trattamento dei dati personali (D.Lgs196/2003) e

* I campi con l'asterisco sono obbligatori


La responsabilità del contenuto dell'annuncio fa capo all'inserzionista, questo portale immobiliare attua controlli ma non può fornire alcuna garanzia circa le informazioni pubblicate da terzi.