gazzetta immobiliare

Bi/Trilocale in Vendita Botticino

335.000
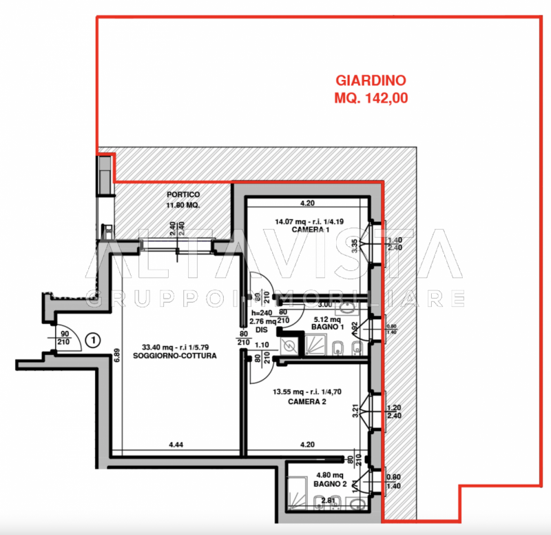
Mq. 95
3 locali

Botticino Sera

- Botticino (BS) Via Molino Parti
Gazzetta Immobiliare 10920705 – Riferimento Agenzia RZ60G1 – Nel cuore di Botticino Sera, a pochi passi da Brescia, è attualmente in costruzione il complesso residenziale Parco della Valverde. Progettata per offrire il massimo comfort abitativo, questa residen... Vedi di più
Prezzo: € 335.000 Fai una controproposta

Contatta per l'annuncio

Confermo di aver letto l'informativa vedi sul trattamento dei dati personali (D.Lgs196/2003) e

* I campi con l'asterisco sono obbligatori


La responsabilità del contenuto dell'annuncio fa capo all'inserzionista, questo portale immobiliare attua controlli ma non può fornire alcuna garanzia circa le informazioni pubblicate da terzi.