gazzetta immobiliare

Bi/Trilocale in Vendita Lecce

255.000
Mq. 125
4 locali

Salesiani

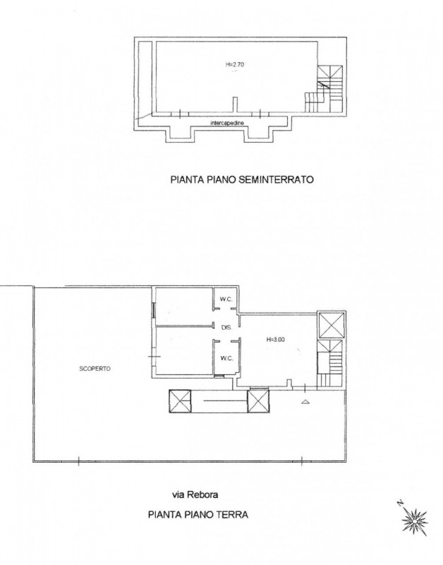
- Lecce (LE) Via Clemente Rebora 15
Gazzetta Immobiliare 10887436 – Riferimento Agenzia Rebora – Proponiamo in vendita esclusiva un ampio appartamento trilocale di 125 mq situato nella prestigiosa zona Salesiani di Lecce. L'immobile si trova al piano terra di un piccolo condominio ed è caratteri... Vedi di più
Prezzo: € 255.000 Fai una controproposta

Contatta per l'annuncio

Confermo di aver letto l'informativa vedi sul trattamento dei dati personali (D.Lgs196/2003) e

* I campi con l'asterisco sono obbligatori


La responsabilità del contenuto dell'annuncio fa capo all'inserzionista, questo portale immobiliare attua controlli ma non può fornire alcuna garanzia circa le informazioni pubblicate da terzi.