gazzetta immobiliare

Villetta a schiera in Vendita Senigallia

465.000
Mq. 185
4 locali

Senigallia - Centro

- Senigallia (AN) Via Fabrizio Testaferrata
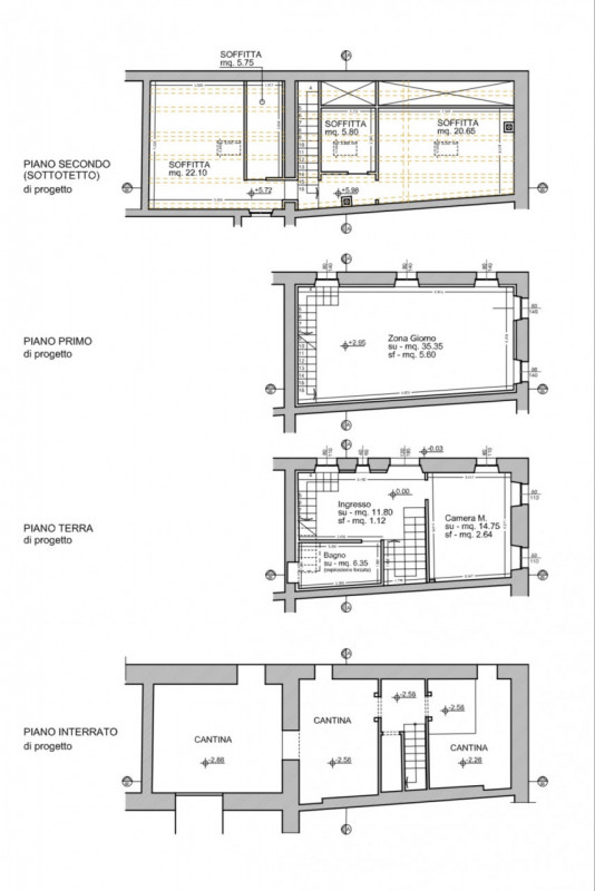
Gazzetta Immobiliare 10851310 – Riferimento Agenzia 4134 – Senigallia, nel cuore del centro storico, vendesi casa a schiera su tre livelli per complessivi 185 mq. Così composta: al piano terra ingresso, camera e bagno; al piano primo ampio soggiorno con cuci... Vedi di più
Prezzo: € 465.000 Fai una controproposta

Contatta per l'annuncio

Confermo di aver letto l'informativa vedi sul trattamento dei dati personali (D.Lgs196/2003) e

* I campi con l'asterisco sono obbligatori


La responsabilità del contenuto dell'annuncio fa capo all'inserzionista, questo portale immobiliare attua controlli ma non può fornire alcuna garanzia circa le informazioni pubblicate da terzi.