gazzetta immobiliare

Appartamento in Vendita Venezia

205.000
Mq. 95
3 locali

Mestre

- Venezia (VE)
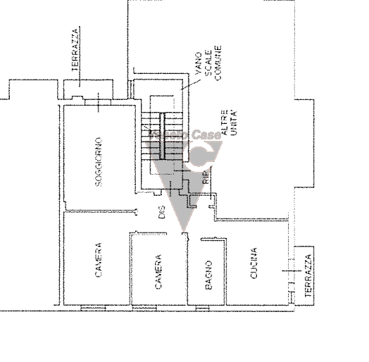
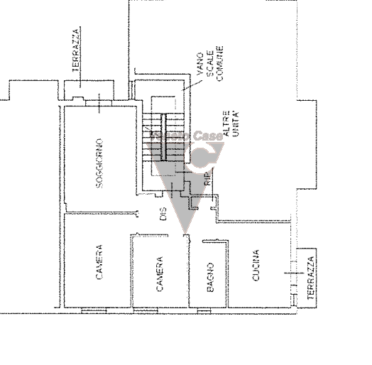
Gazzetta Immobiliare 10797965 – Riferimento Agenzia 203-DMES – Ti presentiamo un affascinante appartamento nel cuore di Mestre di 95 mq, situato in una delle zone più ricercate della città. Questo immobile ristrutturato si trova al secondo piano e mezzo di un c... Vedi di più
Prezzo: € 205.000 Fai una controproposta

Contatta per l'annuncio

Confermo di aver letto l'informativa vedi sul trattamento dei dati personali (D.Lgs196/2003) e

* I campi con l'asterisco sono obbligatori


La responsabilità del contenuto dell'annuncio fa capo all'inserzionista, questo portale immobiliare attua controlli ma non può fornire alcuna garanzia circa le informazioni pubblicate da terzi.