gazzetta immobiliare

Villetta a schiera in Vendita Costabissara

€ trattativa riservata
Mq. 225
4 locali

Costabissara - Centro

- Costabissara (VI) via donizzetti
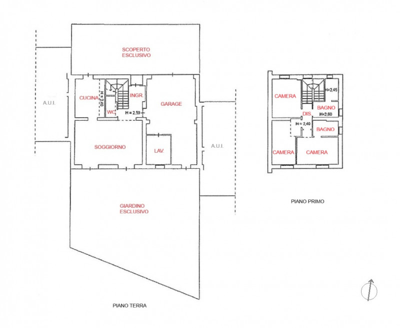
Gazzetta Immobiliare 10797930 – Riferimento Agenzia 8309 – COSTABISSARA: RECENTISSIMA VILLA IN CLASSE ENERGETICA A4 CON GIARDINO E GARAGE DOPPIO - Rif. 8309 In centro a Costabissara, in posizione molto tranquilla e silenziosa, proponiamo elegante villina inse... Vedi di più
Prezzo: Trattativa riservata Fai una controproposta

Contatta per l'annuncio

Confermo di aver letto l'informativa vedi sul trattamento dei dati personali (D.Lgs196/2003) e

* I campi con l'asterisco sono obbligatori


La responsabilità del contenuto dell'annuncio fa capo all'inserzionista, questo portale immobiliare attua controlli ma non può fornire alcuna garanzia circa le informazioni pubblicate da terzi.