gazzetta immobiliare

Casa indipendente in Vendita Verona

590.000
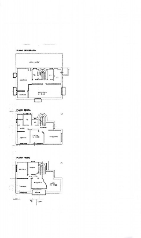
Mq. 290
6 locali

Parona

- Verona (VR)
Gazzetta Immobiliare 10796293 – Riferimento Agenzia – Villa singola con vista lago e ampio giardino a San Giorgio Ingannapoltron In una delle zone più suggestive e panoramiche della Valpolicella, nel rinomato borgo di San Giorgio Ingannapoltron, inseri... Vedi di più
Prezzo: € 590.000 Fai una controproposta

Contatta per l'annuncio

Confermo di aver letto l'informativa vedi sul trattamento dei dati personali (D.Lgs196/2003) e

* I campi con l'asterisco sono obbligatori


La responsabilità del contenuto dell'annuncio fa capo all'inserzionista, questo portale immobiliare attua controlli ma non può fornire alcuna garanzia circa le informazioni pubblicate da terzi.