gazzetta immobiliare

Attico/Mansarda in Vendita Trento

€ trattativa riservata
Mq. 156
4 locali

Clarina / San Bartolomeo

- Trento (TN) Via generale Giacomo Medici
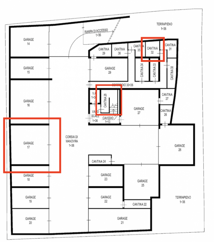
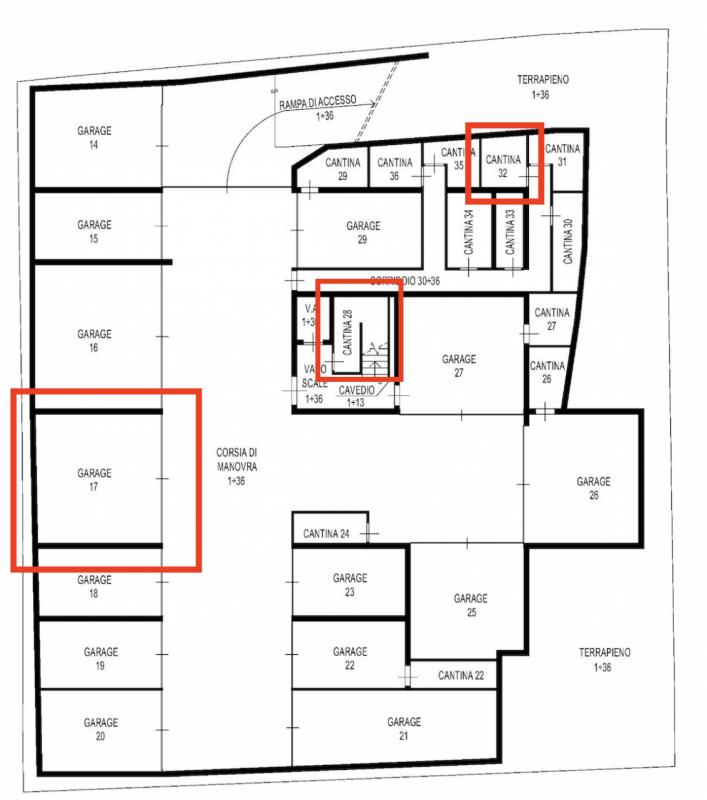
Gazzetta Immobiliare 10744541 – Riferimento Agenzia 4282 – Proponiamo in vendita un elegante attico di nuova costruzione, situato in una posizione centrale, servita e tra le più ricercate di Trento. L’immobile si trova all’ultimo piano di una palazzina ... Vedi di più
Prezzo: Trattativa riservata Fai una controproposta

Contatta per l'annuncio

Confermo di aver letto l'informativa vedi sul trattamento dei dati personali (D.Lgs196/2003) e

* I campi con l'asterisco sono obbligatori


La responsabilità del contenuto dell'annuncio fa capo all'inserzionista, questo portale immobiliare attua controlli ma non può fornire alcuna garanzia circa le informazioni pubblicate da terzi.