gazzetta immobiliare

Bi/Trilocale in Vendita Mezzolombardo

199.000
Mq. 57
2 locali

Mezzolombardo

- Mezzolombardo (TN) Via Trento
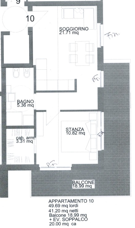
Gazzetta Immobiliare 10729163 – Riferimento Agenzia N033.5 – Rif. N033.5 A Mezzolombardo, in una zona residenziale tranquilla, proponiamo questo bilocale di nuova costruzione al primo piano, composto da cucina-soggiorno, stanza da letto, bagno, ingresso e ampi... Vedi di più
Prezzo: € 199.000 Fai una controproposta

Contatta per l'annuncio

Confermo di aver letto l'informativa vedi sul trattamento dei dati personali (D.Lgs196/2003) e

* I campi con l'asterisco sono obbligatori


La responsabilità del contenuto dell'annuncio fa capo all'inserzionista, questo portale immobiliare attua controlli ma non può fornire alcuna garanzia circa le informazioni pubblicate da terzi.