gazzetta immobiliare

Appartamento in Vendita Venezia

750.000
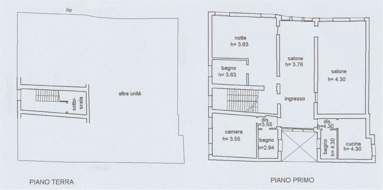
Mq. 170
8 locali

Santa Croce

- Venezia (VE) Campo San Cassiano
Gazzetta Immobiliare 10654035 – Riferimento Agenzia A1396 – Gruppo Santa Marina Immobiliare Aena presenta: Magnifica unità immobiliare di ampia Metratura, ubicata a Venezia , pochi passi da Campo San Cassiano -Sestiere di Santa Croce. Tra le caratteri... Vedi di più
Prezzo: € 750.000 Fai una controproposta

Contatta per l'annuncio

Confermo di aver letto l'informativa vedi sul trattamento dei dati personali (D.Lgs196/2003) e

* I campi con l'asterisco sono obbligatori


La responsabilità del contenuto dell'annuncio fa capo all'inserzionista, questo portale immobiliare attua controlli ma non può fornire alcuna garanzia circa le informazioni pubblicate da terzi.