gazzetta immobiliare

Rustico/Casale in Vendita Castiglione delle Stiviere

350.000
Mq. 700

Astore

- Castiglione delle Stiviere (MN) Via Morti dell'Astore
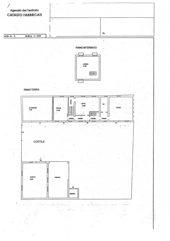
Gazzetta Immobiliare 10624519 – Riferimento Agenzia 2634 – Scopri questo affascinante rustico cascina situato nel pittoresco comune di Castiglione delle Stiviere, nella zona Astore. Con una metratura generosa di ben 700 mq coperti, questa proprietà rappresen... Vedi di più
Prezzo: € 350.000 Fai una controproposta

Contatta per l'annuncio

Confermo di aver letto l'informativa vedi sul trattamento dei dati personali (D.Lgs196/2003) e

* I campi con l'asterisco sono obbligatori


La responsabilità del contenuto dell'annuncio fa capo all'inserzionista, questo portale immobiliare attua controlli ma non può fornire alcuna garanzia circa le informazioni pubblicate da terzi.