gazzetta immobiliare

Palazzo/Stabile in Vendita Quinto Vicentino

670.000
Mq. 285
5 locali

Quinto Vicentino

- Quinto Vicentino (VI) Via Cesare Battisti
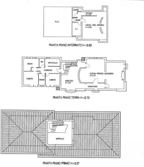
Gazzetta Immobiliare 10548340 – Riferimento Agenzia VI-NPV383 – In posizione privilegiata nel cuore di Quinto Vicentino, proponiamo in vendita una splendida villa singola di circa 250 mq, situata in una zona tranquilla e riparata dal traffico, ma a due passi da tu... Vedi di più
Prezzo: € 670.000 Fai una controproposta

Contatta per l'annuncio

Confermo di aver letto l'informativa vedi sul trattamento dei dati personali (D.Lgs196/2003) e

* I campi con l'asterisco sono obbligatori


La responsabilità del contenuto dell'annuncio fa capo all'inserzionista, questo portale immobiliare attua controlli ma non può fornire alcuna garanzia circa le informazioni pubblicate da terzi.