gazzetta immobiliare

Bi/Trilocale in Vendita Riccione

622.000
Mq. 100
3 locali

Riccione - Centro

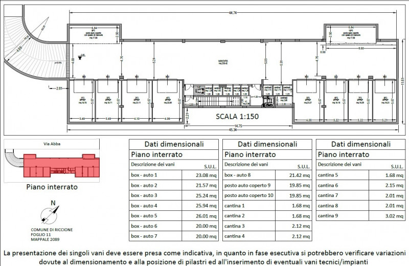
- Riccione (RN) Viale Abba
Gazzetta Immobiliare 10520489 – Riferimento Agenzia 102AP 3A P.Seco – Riccione Centro adiacente Viale Ceccarini Mare a soli 300m dal Porto Canale Acquisto con Agevolazione Sisma Bonus Nuovo Esclusivo complesso residenziale dal design moderno in classe energetica A4 App... Vedi di più
Prezzo: € 622.000 Fai una controproposta

Contatta per l'annuncio

Confermo di aver letto l'informativa vedi sul trattamento dei dati personali (D.Lgs196/2003) e

* I campi con l'asterisco sono obbligatori


La responsabilità del contenuto dell'annuncio fa capo all'inserzionista, questo portale immobiliare attua controlli ma non può fornire alcuna garanzia circa le informazioni pubblicate da terzi.