gazzetta immobiliare

Bi/Tri/Quadrifamiliare in Vendita Vigonza

380.000
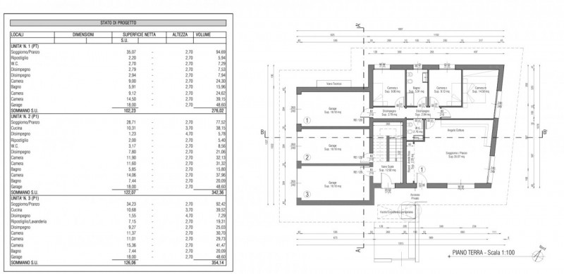
Mq. 205
5 locali

Peraga

- Vigonza (PD) Vigonza Via Bonaventura da Peraga 24
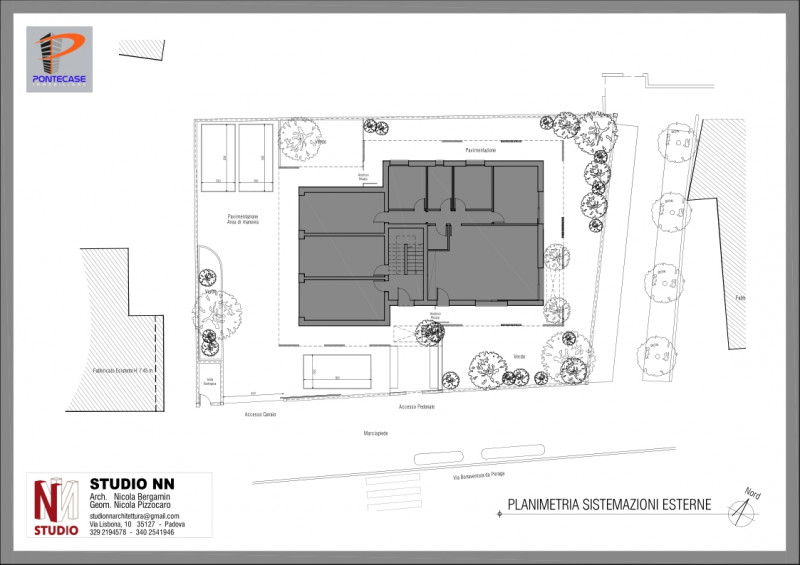
Gazzetta Immobiliare 10433185 – Riferimento Agenzia pon330 – In Comune di Vigonza zona Peraga vicino al castello dei Peraga, nuova realizzazione fronte piazza della chiesa, trifamiliare con generose dimensioni di ca 205mq, con 4 camere in classe A/4. L'interven... Vedi di più
Prezzo: € 380.000 Fai una controproposta

Contatta per l'annuncio

Confermo di aver letto l'informativa vedi sul trattamento dei dati personali (D.Lgs196/2003) e

* I campi con l'asterisco sono obbligatori


La responsabilità del contenuto dell'annuncio fa capo all'inserzionista, questo portale immobiliare attua controlli ma non può fornire alcuna garanzia circa le informazioni pubblicate da terzi.