gazzetta immobiliare

Appartamento in Vendita Braies

1.000.000
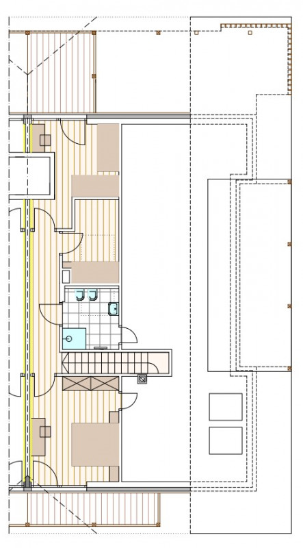
Mq. 154
4 locali

Braies di Fuori

- Braies (BZ) frazione Braies di Fuori
Gazzetta Immobiliare 10193786 – Riferimento Agenzia W11 – VENDITA DIRETTA DAL COSTRUTTORE (Senza provvigioni) Il complesso residenziale "Küblerhof" rappresenta una reinterpretazione moderna dell'architettura tradizionale. Questo edificio unico ospita dodic... Vedi di più
Prezzo: € 1.000.000 Fai una controproposta

Contatta per l'annuncio

Confermo di aver letto l'informativa vedi sul trattamento dei dati personali (D.Lgs196/2003) e

* I campi con l'asterisco sono obbligatori


La responsabilità del contenuto dell'annuncio fa capo all'inserzionista, questo portale immobiliare attua controlli ma non può fornire alcuna garanzia circa le informazioni pubblicate da terzi.